Standort
Liblar/Erftstadt
Grösse
784 m² Wohnen
1124 m² Wohnen
900 m² TG
LPH HOAI
LP 1-5, +
künstlerische
Oberleitung
Bauphysik
Status
Realisiert
Jahr
2025
Bauherr
Privat
Kosten – Funktion – Design
Ein genehmigter Bebauungsplan bot den Rahmen für dieses Wohnquartier in der Nähe des Liblarer Sees.
Unsere Planung sieht 3 freistehende Einfamilienhäuser und 4 Doppelhaushälften vor, und im südlichen Teil 2 Geschoßwohnungsbauten mit je 8 und 9 Wohneinheiten, Tiefgarage, Spielplätzen sowie einer zentralen Piazetta.
![]()
Hervorragend per ÖPNV an Köln und Umgebung angebunden, bietet die Lage eine attraktive Alternative im Umland, bezahlbar, hochqualitativ, im Energieeffizienzstandard kfw 55 EE.
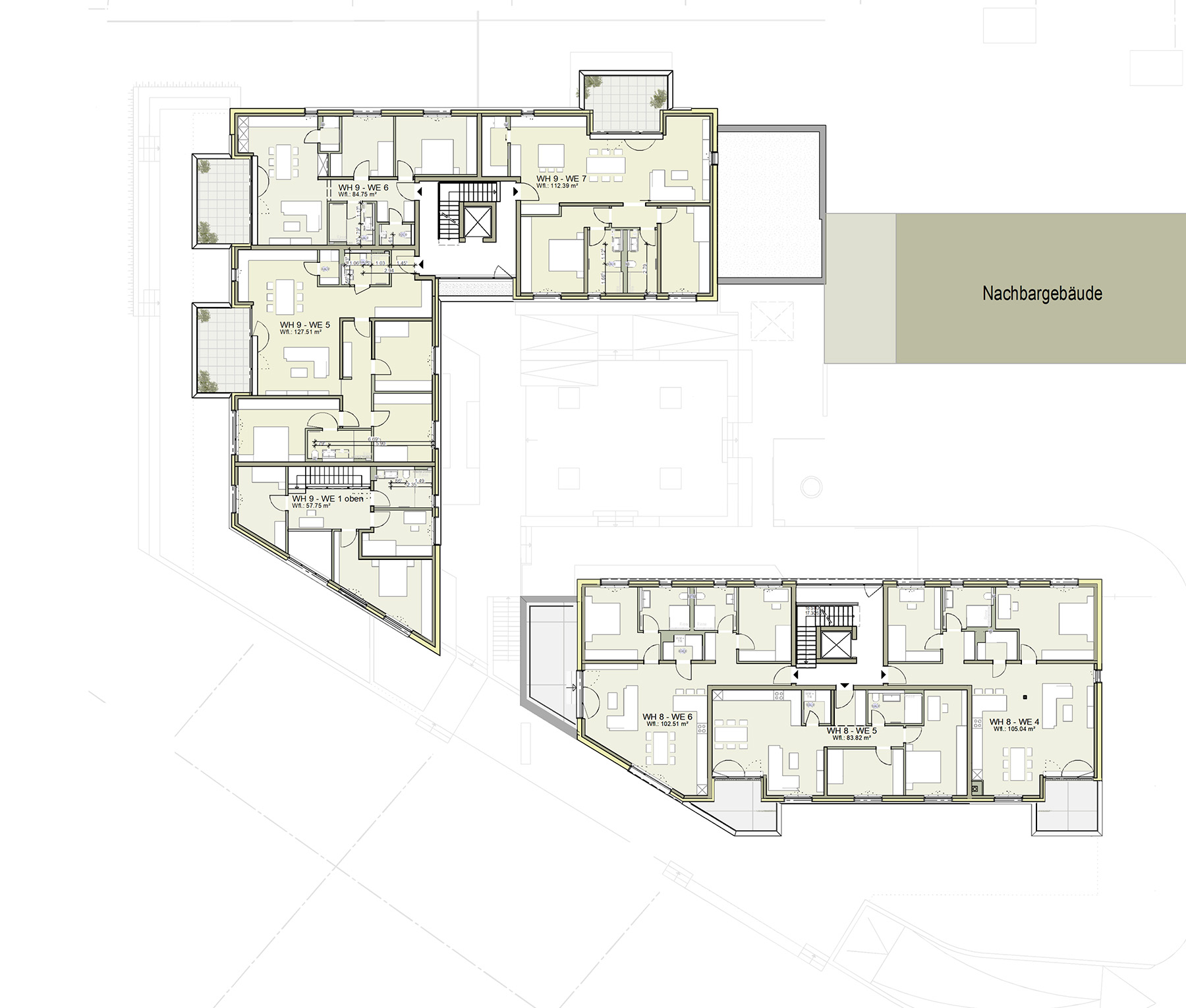
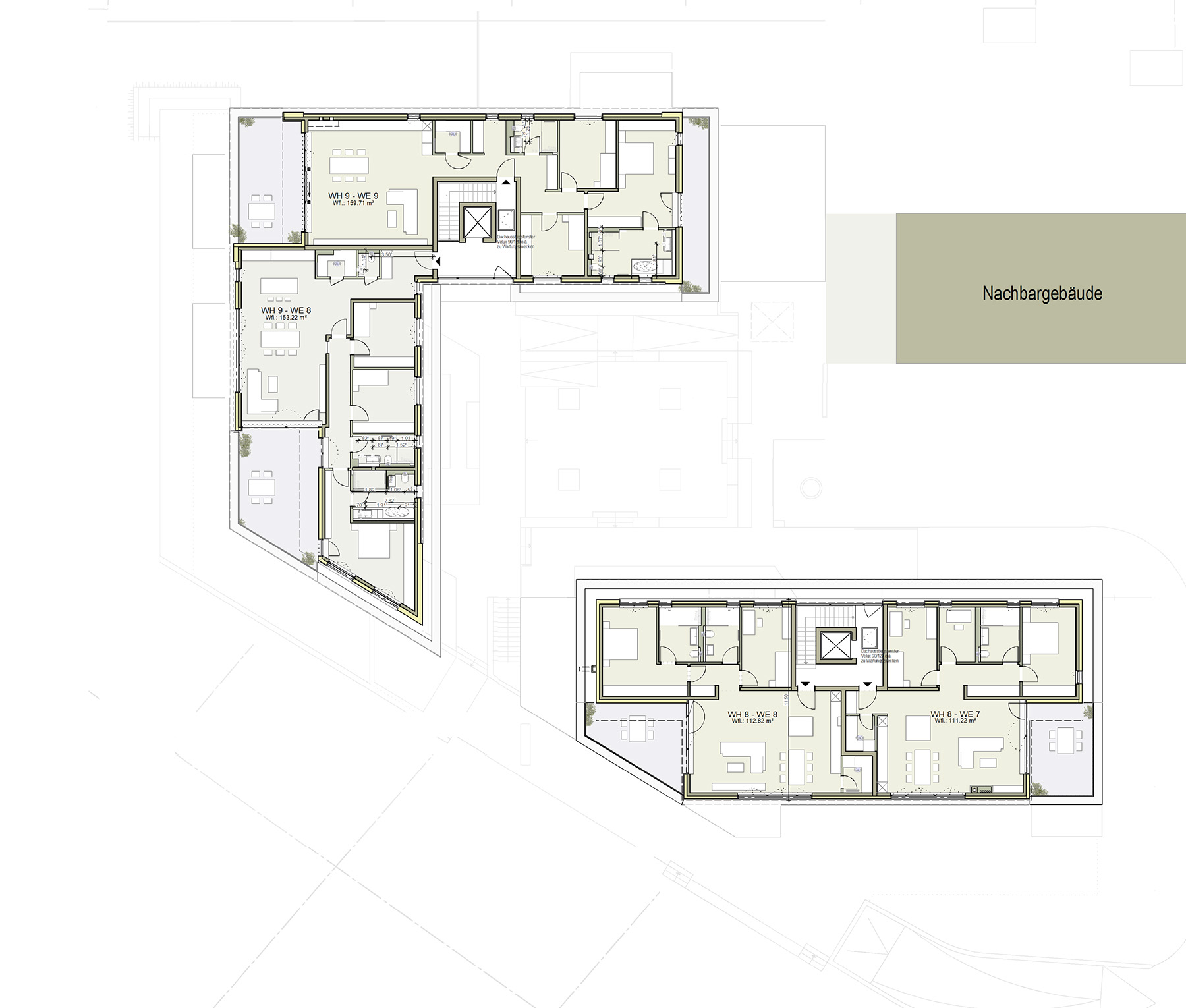
WOHNUNGEN
Mit Klick auf das Bild erscheint das nächste Bild
Die 3 oder 4 Zimmer- Wohnungen in Größen von 85 bis 165 m² Wohnfläche sind individuell, hochfunktional und großzügig geschnitten.
Die geräumigen Terrassengrößen betragen zwischen 18 und 35 m², und sind ruhig nach außen orientiert. Zentral liegt eine begrünte Piazetta für die Bewohner.
Mit Klick auf das Bild erscheint das nächste Bild
ENSEMBLE
In Materialität und Architektursprache sind die Mehrfamilienhäuser gleich mit den Einfamilienhäusern und Doppelhaushälften (2. Bauabschnitt), es entsteht ein gestalterisch ruhiges, durchgrüntes Quartier.
Mit Klick auf das Bild erscheint das nächste Bild
Über den Sockelgeschoßen, in Klinker (90/40/290) bekleidet, ruhen die Obergeschoße mit Kammputz- Einlage und variieren das Thema der Horizontalität.
Mit Klick auf das Bild erscheint das nächste Bild
